Welcome to the Stallings Planning & Zoning Department's Small Area Plans page. This page provides information about the town's small area plans, which are in place for the following areas:


The Town of Stallings has embarked on a comprehensive planning initiative that encompasses developing a 50-year development plan and detailed small area plans for six key areas: Monroe Expressway, Idlewild Road Corridor, Stallings Elementary School, Smith Farm Business District, Downtown Stallings and Chestnut.
**TOD Overlay is currently on HOLD**
Silver Line SAP
The Monroe Expressway SAP has been updated to the Silver Line SAP on April 28, 2025 as part of the Destination Stallings Transit Integration Plan.




Idlewild Road Corridor SAP
This study area extends from I-485 to Stevens Mill Road.





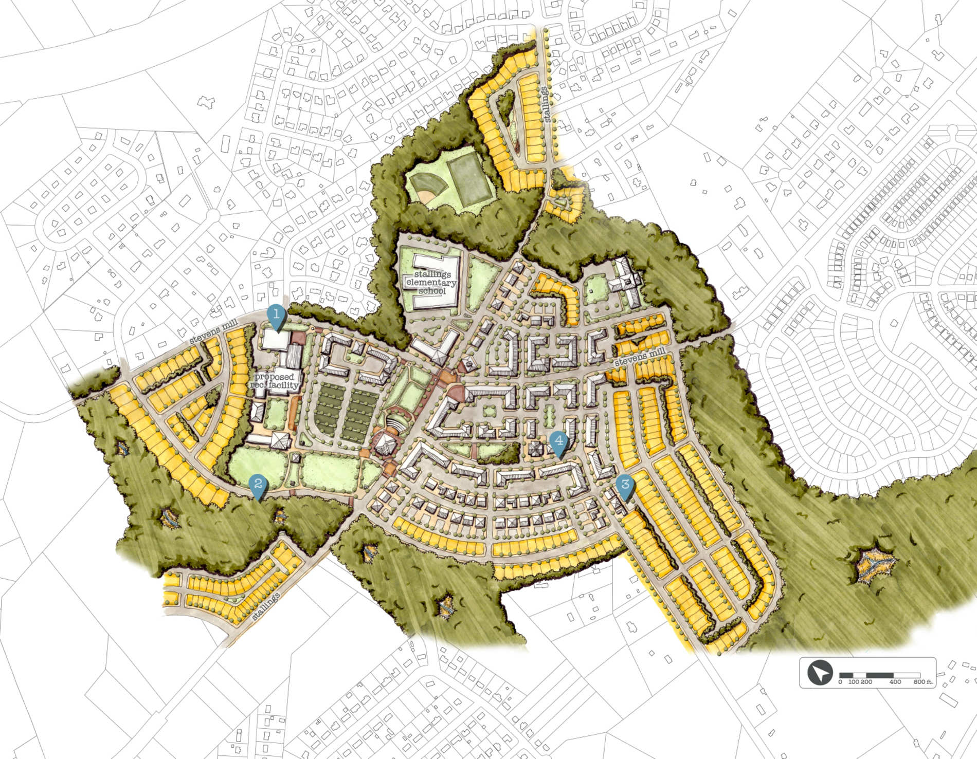
Stallings Elementary School Node SAP
Stallings Elementary School Node Small Area Plan is located at the intersection of Stallings and Stevens Mill roads, north of the Monroe Expressway.





CEM/Smith Farm Business District SAP
This business district is located between the Town Center Small Area Plan and the Silver Line Small Area Plan. It is a mixed-use, transit-ready, and walkable center that brings together the two plans.





Town Center SAP
The Town Center Small Area Plan is at the heart of the Town of Stallings' comprehensive planning effort. It is located in the town center, at the intersection of Stallings Road, Old Monroe Road, and Potter Road.





Chestnut Lane SAP
The Chestnut Lane Small Area Plan is at the far southwestern area of Stallings, where Matthews Weddington Road and Chestnut Lane intersect. It is the most recent part of the town's comprehensive planning effort.




